KEQIAO WATER TOWN REVIVAL
- Transformation of Jinxiuyuan Community -

Graduation Design - Silver Award

Student project
Individual work
Year: 2022
Location: Shaoxing, Zhejiang, China
Tutor: Olivier Greder
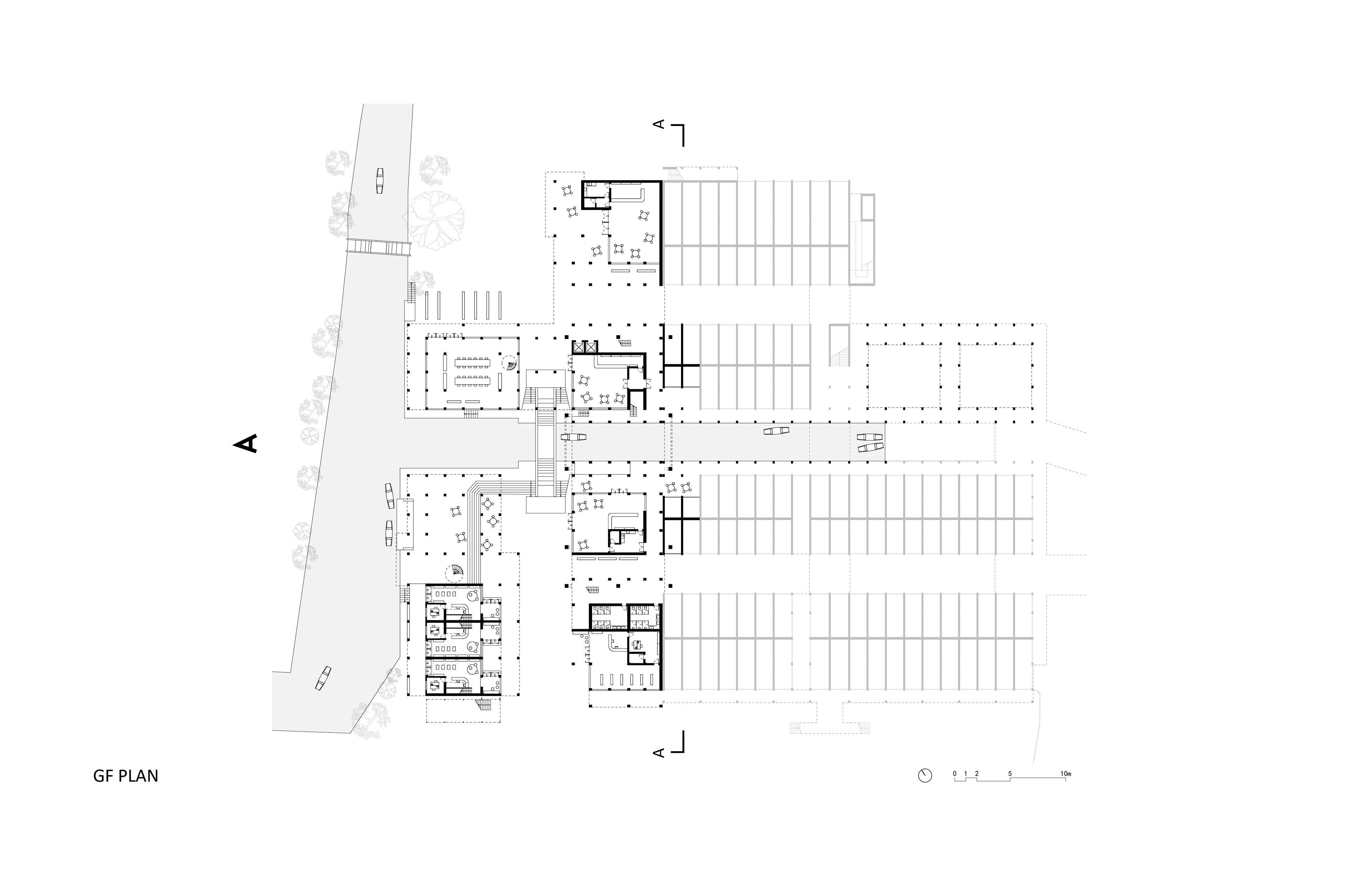
This project is my ideal community. I have lived in a traditional Chinese water town since I was a child. Water town carries the memory of the local culture. However, in recent years, urbanization has destroyed the original balance between water towns and the environment.
In this project, I completed and restored a 90s building complex in Shaoxing, which is a famous water town in China. I explored how to reawaken people's enthusiasm for water village life through refurbished public spaces and reactivated water networks. In this project, a new channel is introduced into the community, which flexibly shapes the street and brings possibilities for the public space of the water town.
This site was chosen after a 200-km group urban hiking. What I feel most deeply about this project is the regret that the water town fabric is gradually disappearing in the context of expanding urbanisation. This project made me start to rethink my responsibilities as an architect.

You may also like

Back to Top