DRIFT IN HANASAARI
- Transformation of Hanasaari Power Plant -

Student project
Individual work
Year: 2024
Location: Helsinki, Finland
Tutor: Antti Ahlava
Cooperation: City of Helsinki / Helsinki Art Museum


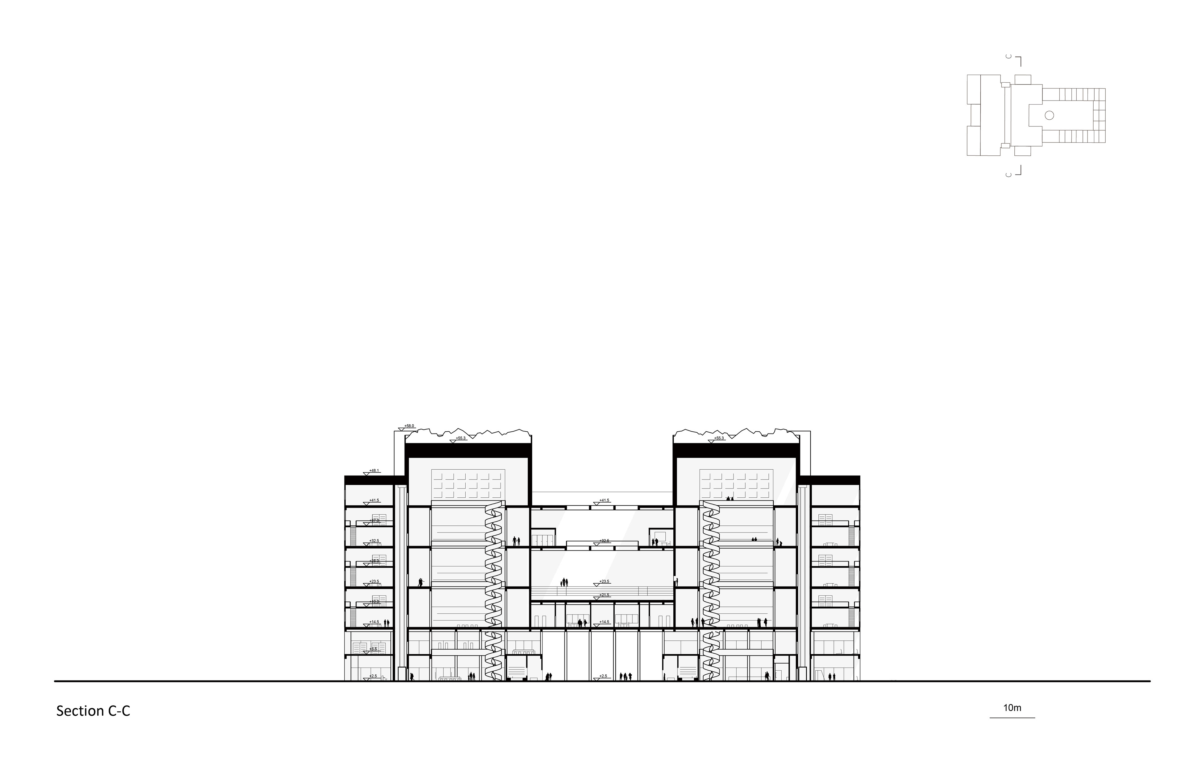
This is a project about the transformation of a power plant, aiming to renovate an industrial area into a cultural and artistic as well as a residential area. In this project, the idea of the 'collage city' (Colin Rowe) is used as a methodology. At the same time, the concept of "drift", as advocated by psychogeography, is used as the goal of the project, which means people can have the experience of exploring the city in a way that is different from their daily routes. It's 'the revolution of everyday life' (Raoul Vaneigem).
In my conversation with the Helsinki Art Museum (HAM), I was reminded of the vital role that art plays in public life and mental well-being, especially in Finland’s long winters. HAM’s mission to ‘bring art closer to everyone’s life’ showed me that architecture is more than design—it has a deep social significance, connecting people to their surroundings and to each other.

You may also like

Back to Top